Home » rentals » 6051b
  • front1

    front1

  • front2

    front2

  • front3

    front3

  • back-loft1

    back-loft1

  • back-loft1a

    back-loft1a

  • back-loft3

    back-loft3

  • front-loft1

    front-loft1

  • front-loft2

    front-loft2

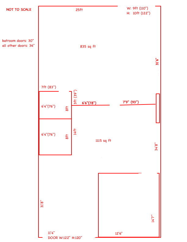
  • sketch

    sketch

Login